куусинена
Куусинена
Помимо этого — адаптировать интерьер под образ жизни заказчиков, которые много работают, в том числе из дома, а также серьезно относятся к спорту и любят готовить.
создать интерьер с учетом привычек и задач заказчиков — молодой пары, планирующих потенциальное расширение семьи.
Задача
Сталинка 1955 года
в духе европейского ретро
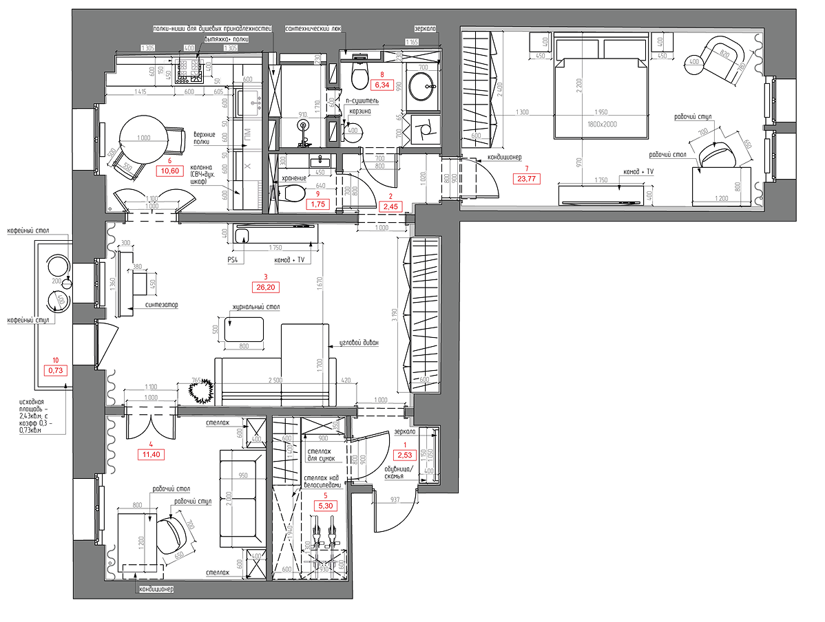
91 м²
Высокие потолки, исторические разноуровневые двери и паркет всех видов были дополнены в духе французского шика.
Ранее в квартире долгое время жила семья французов.

По этой причине общее состояние представляло собой причудливый микс советского и французского ретро.
Как это было
Все помещения имели совершенно очаровательную палитру всех цветов радуги, а местами добавилась внешняя ретро-проводка и крючки для удобства в непривычных местах.
Этот дух ретро мы и решили сохранить, добавив однако, современности и функциональности.
Классическая планировка сталинки с четким ритмом окон и артефакты, оставшиеся от прежних жильцов, натолкнули нас на мысль пересмотреть логику помещений
и воссоздать спрятанную анфиладу (один из проемов в квартире был заложен).
Из гостиной можно попасть на кухню или в кабинет через высокие распашные двери, а присоединенный участок коридора, оформленный порталами, ведет в главную спальню и cанузлы.
Центр и сердце дома — гостиная. Через панорамное окно и легкое ограждение балкона открывается вид во двор.
Made on
Tilda