HAUSSMANN
145 м²
Квартира в французском стиле
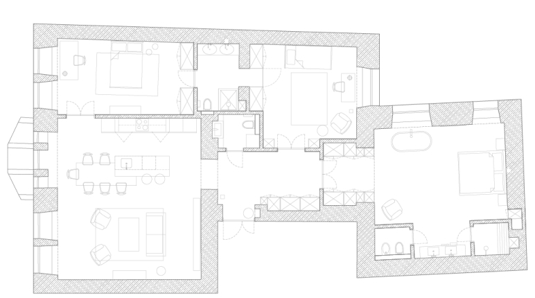
Объект расположен на втором этаже в старом фонде. Это позволило нам разработать нестандартные планировочные решения.

В качестве стилевых аналогов — интерьеры в французском «османовском» стиле: обилие света, простор, классические элементы (лепнина, паркет, высокие двери) и винтажные предметы с историей
Спальня с элементами ретрофутуризма.

В зеркальных кубах скрыта душевая и туалет. Оттенок зеркала отсылает к закатному солнцу, придает тепла и мягкости.

У входа в спальню расположена вместительная гардеробная с фасадами, имитирующими стены
Детская для девочки 6 лет.
Комната выполнена в духе интерьера всей квартиры, смягченного плавными формами и теплыми акцентами
Комната мальчика-подростка отражает свободолюбивый характер ее хозяина. Глубокий сдержанный синий — отсылка к взрослой серьезной жизни, красный — привносит элемент бунтарства
Футуристичная прихожая в приглушенном свете светильника-струны
Made on
Tilda