академическая
Академическая
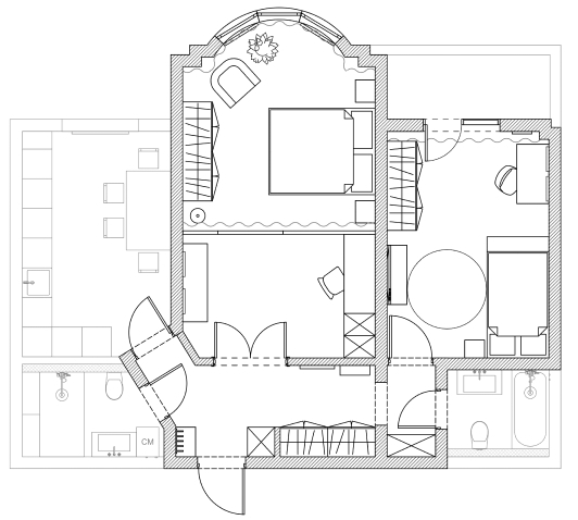
75 м²
Редизайн интерьера комнат
Задача
в квартире 50 м² продумать зонирование помещений, разместить большое количество зон хранения, а также визуально освободить пространство от шума.
Дополнительные условия:
• стиль помещений современный, лаконичный, практичный;
• тактильность и индивидуальные решения для каждого помещения
Процесс работы над проектом вдохновил нас
на эксперименты, так большая гостиная превратилась в спальню, с выделенной зоной кабинета, а детская переместилась в бывшую мастер-спальню.
Благодаря переосмыслению планировочного решения, нам удалось подстроить помещения под образ жизни заказчиков
Заказчица — преуспевающий дизайнер одежды, которая много работает из дома. По этой причине при разработке концепции спальни, нам было важно разграничить помещения таким образом, чтобы исключить внешние раздражители, создав спокойную, но при этом рабочую атмосферу в зоне кабинета
Made on
Tilda