Беговая
Кроме того, было необходимо укомплектовать квартиру всем необходимым для жизни и повысить ее конкурентную привлекательность среди схожих предложений в этом же районе.
Сделать квартиру более привлекательной для потенциальных арендаторов, а также провести работу над ошибками, которые достались от застройщика.
Задача
Квартира как инвестиция
46 м²
беговая
Тогда ей понравилось то, как проходил рабочий процесс — мы помогли разобраться со всеми сложными решениями, и сам результат. Поэтому, когда возникла новая задача, она без колебаний вернулась к нам.
К нам обратилась заказчица, с которой мы уже работали ранее над другим проектом.
Как это было
Одним из важных преимуществ объекта был потрясающий вид из окна (ранее мы работали со схожим объектом, у заказчицы классный вкус на выбор квартир).
Мы провели анализ рынка, и стало ясно, что большинство арендодателей придерживались подхода «привезти в квартиру все, что было нажито годами».
Так мы поняли, что выделить наш объект среди похожих предложений, мы сможем применяя некоторые декораторские приемы, сочетая базовые предметы мебели с необычными решениями.
Нашей задачей было создать интерьер с современными дизайнерскими решениями, в который арендатор на этапе просмотра фото на сайте аренды сможет легко вписать свой образ жизни в этих стенах.
Площадь квартиры и ее расположение также помогли нам с портретом потенциального арендатора — М или Ж, пара или пара с маленьким ребенком, с доходом выше среднего, возможно частично работающие из дома.
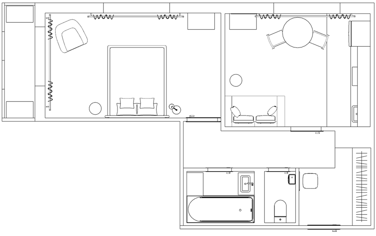
В разработанном планировочном решении кухня‑гостиная рассчитана на приготовление еды в средне‑регулярном режиме и позволяет без труда принимать гостей.
Зона хранения объединена у прихожей, благодаря чему в спальне можно по желанию организовать рабочее место и/или поставить детскую кроватку.
Совет: мы не рекомендуем оставлять ремонт от застройщика с непокрашенными обоями под покраску, это создает ощущение незавершенного интерьера — даже белый цвет может быть интересного оттенка.
Для придания интерьеру индивидуальности в рамках разумного бюджета, мы точечно зонировали пространство.

Приглушенная палитра — в местах, на которые в обычной жизни взгляд падает не так часто, основные зоны — нейтральные, комфортные тона.
Фактически остается лишь выбрать мебель и повесить шторы.
Ремонт от застройщика уже включает все основные отделочные покрытия — обои под покраску, напольные материалы, плитку и сантехнику.
В кухне‑гостиной пространство требовалось с одной стороны соединить — это было сделано карнизом припыленного фиолетового оттенка, а с другой стороны — разграничить. Поэтому в зоне кухни мы выбрали более техническое освещение, а в зоне гостиной — акцентный светильник.
Вытянутая форма спальни требовала корректировки, поэтому зона у входа была открашена в насыщенный синий цвет.
Made on
Tilda